
Zubacher: Sanierung Studio wegen Wasserschadens
Der 1976 erstellte Studioanbau erfuhr infolge eines Wasserschadens eine Komplettsanierung. Im Rahmen der Schadensanierung wurde die Gelegenheit ergriffen Verbesserungen an der Bestandesarchitektur vorzunehmen.
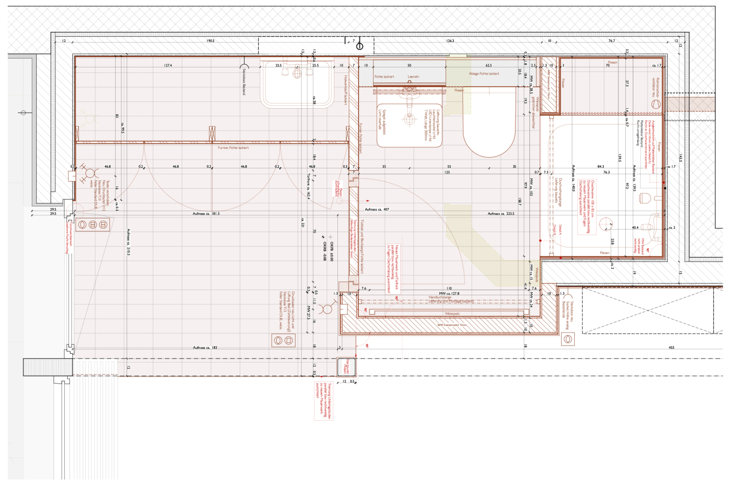
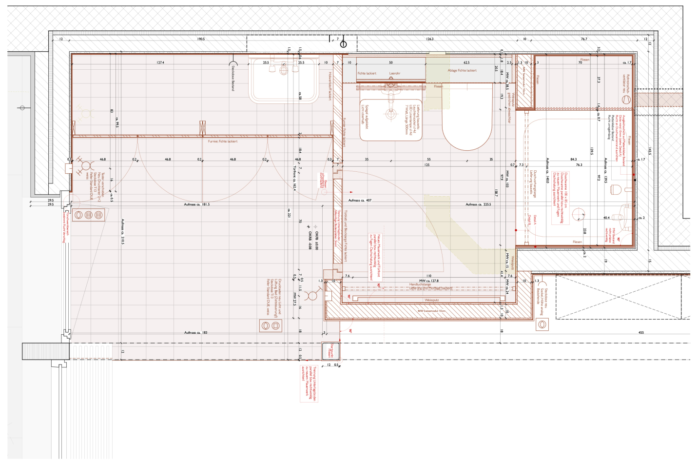
Der sehr knappe Grundriss des Bades wurde vergrössert. Der Versprung des neuen Mauerwerks bildet dabei im Hauptraum eine Nische für Büchergestelle aus und bildet als verputzer Wandstreifen ein gestalterisches Pendant zu dem im Raum gegenüberliegenden verputzten Kamin aus. Die bestehende Arbeitsablage bei der Aussentüre wurde zugunsten eines Verschlages mit Schranktüren aufgehoben. Schranktüren, Badezimmertüre und holzverkleidete Nische im Bad bilden einen zusammenhängenden Schreinereinbau, welcher sich am gestalterischen Vorbild der Schreinereinbaute im Hauptbau orientiert. Der neue Eichenboden wurde als massiver Holzriemenboden mit einer Dämmebene zum Erdreich hin ausgeführt. Abmessung und Ausrichtung der Riemen sind vom Bestand übernommen. Durch Referenzierung des Holzbodens, der Schreinereinbaute sowie des neuen Strukturputzes auf die Gestaltung des Hauptbaus wird das Innere des Studioanbaus als Weiterführung desselben gelesen. Dies entspricht der äusseren Erscheinung des Anbaus, bei dessen Erstellung Dach und Fassade des Hauptbaus gleichförmig und in gleicher Gestaltung verlängert wurden.
Architektur, Bauleitung: Paul Archibald Hänny, Zürich
Schreiner, Holzböden: Chr. von Bergen AG, Hasliberg Reuti
Baumeister, Plattenarbeiten: Beyeler Bau AG, Meiringen
Sanitär- / Heizinstallationen, Walter Huggler AG, Meiringen
Elektroinstallationen: Enertech AG, Meiringen






